Shophouse The Terra An Hưng là sự lựa chọn hoàn hảo “2 trong 1” cho khách hàng khi có thể vừa kinh doanh thuận tiện ở tầng dưới, vừa có không gian riêng tư để ở tại tầng trên.
Thông tin khối thấp tầng Shophouse The Terra An Hưng
- Diện tích đất thấp tầng: 13.310m2
- Diện tích đất xây dựng: 10.526m2
- Mật độ xây dựng: 79.1%
- Tổng diện tích sàn: 64.869m2
- Tổng số căn: 166
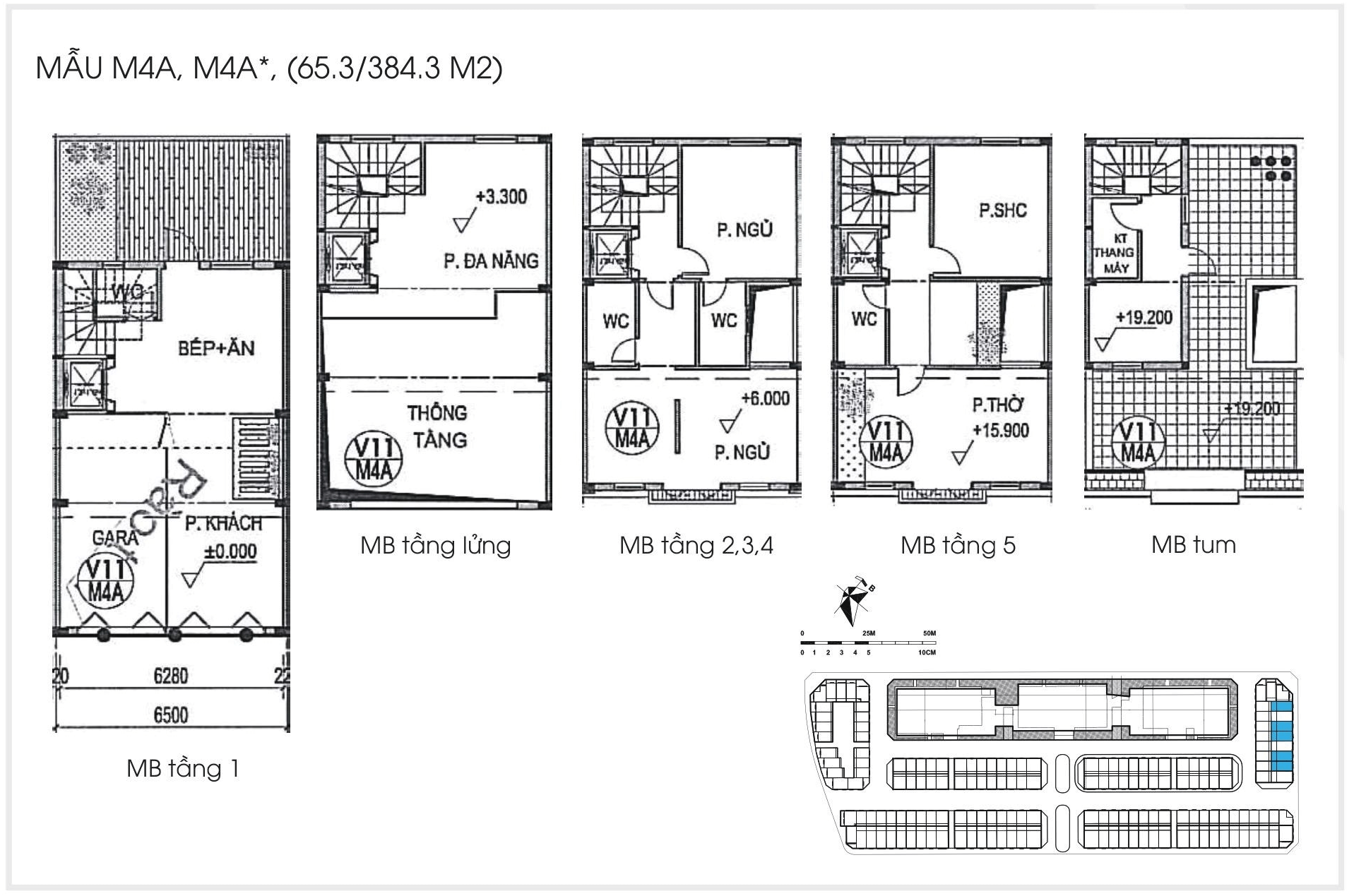
- Mặt tiền mỗi căn: 6.5m
- Chiều cao mỗi căn: 5 – 7 tầng
- Tổng số dân: 664 người
Nằm tại cửa ngõ của KĐT An Hưng, dự án Shophouse the terra an hưng là mô hình bất động sản kết hợp giữa nhà để ở và kinh doanh. Với số lượng các căn Shophosue vô cùng khan hiếm, mỗi căn Shophouse tại dự án The Terra An Hưng đều được thiết kế phân chia không gian hợp lý đảm bảo sự sang trọng, tận dụng tối đa công năng sử dụng trong việc kinh doanh cũng như sự riêng tư của gia chủ.

Thiết kế Shophouse The Terra An Hưng
Shophouse The Terra An Hưng được thiết kế với những dãy nhà phố có không gian mở, kết nối linh hoạt đường Tố Hữu và khu đô thị An Hưng. Với mặt tiền rộng trên 6.5m, chiều cao 5 – 7 tầng và diện tích vô cùng hợp lý, cư dân The Terra có thể lựa chọn linh hoạt các mẫu Shophouse từ 65m2 đến 138m2.









